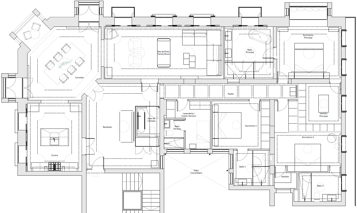
En una finca singular, Tándem simboliza la unión y alianza entre dos estilos. La esencia de esta propiedad radica en la combinación de elementos preexistentes, como cornisas y puertas clásicas, con materiales contemporáneos para crear un espacio único y una atmósfera de elegancia refinada y atemporal.

Dream. Invest. Prosper together.










