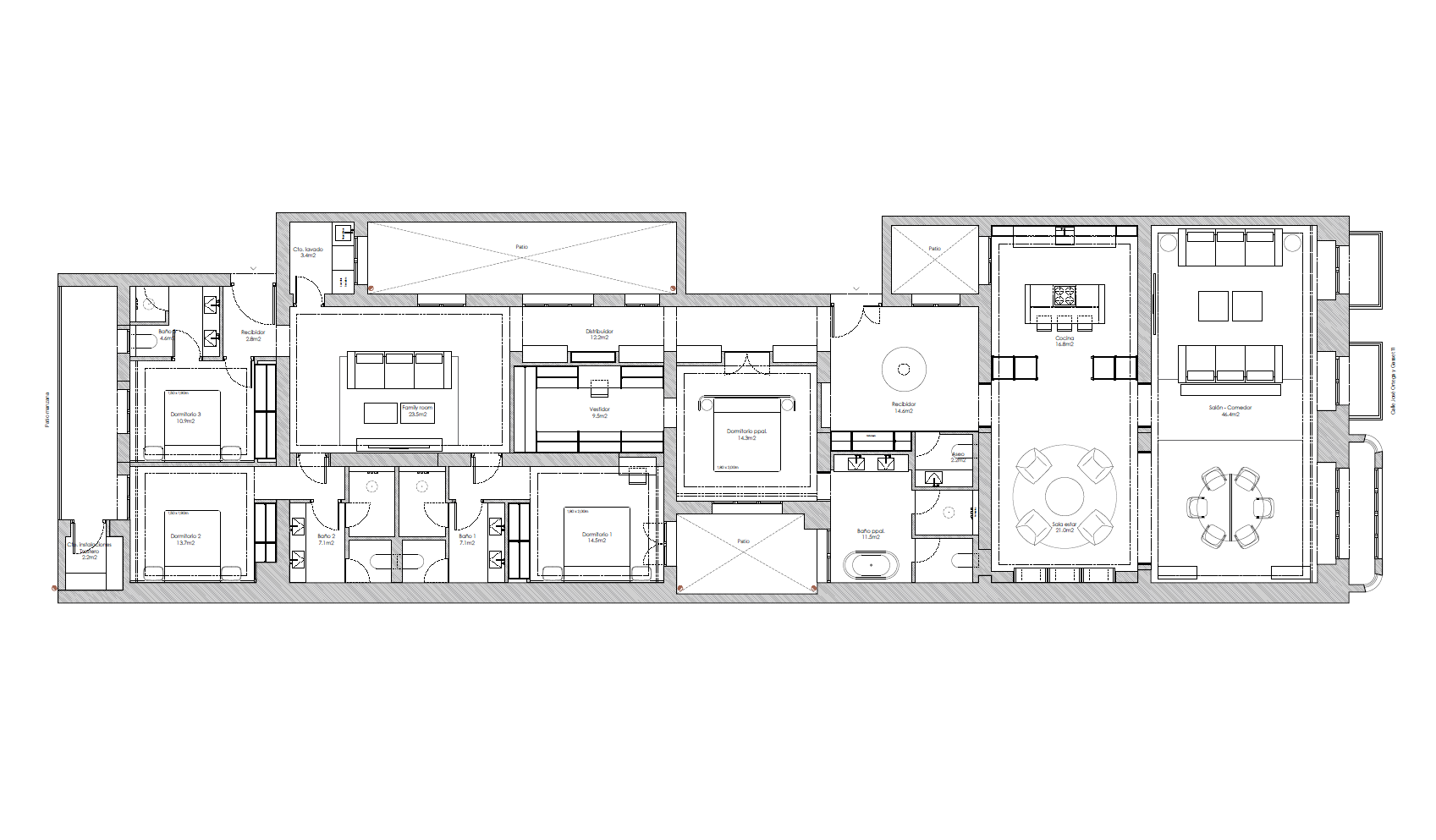
Anhelo symbolizes the desire to reach the extraordinary. Located on José Ortega y Gasset Street, this property stands out for its high-quality classical architecture. With 352 m² in a protected stately building, it features high ceilings of 3.30 meters, three balconies, and a bay window with privileged views. Its exclusivity is enhanced by having few neighbors per floor, ensuring peace and security. Anhelo is not just a property; it is the embodiment of a dream.

Dream together, dream with us










